Kunststofffenster Ideal 4000 von Aluplast.
Nach Maß und ab Fensterfabrik in Polen günstig kaufen.
- Das Universal-Fenster ideal 4000 von Aluplast ist ein günstiges und häufig gekauftes Kunststofffenster.
Es überzeugt durch eine geradlinige Optik und Stabilität
- Bestellen Sie das ideal 4000 nach Maß günstig ab Werk in Polen.
Aluplast Ideal 4000
günstiges und solides Universal-Fenster für Renovierungen
- 2-Fachglas im Standard
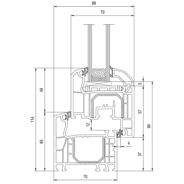
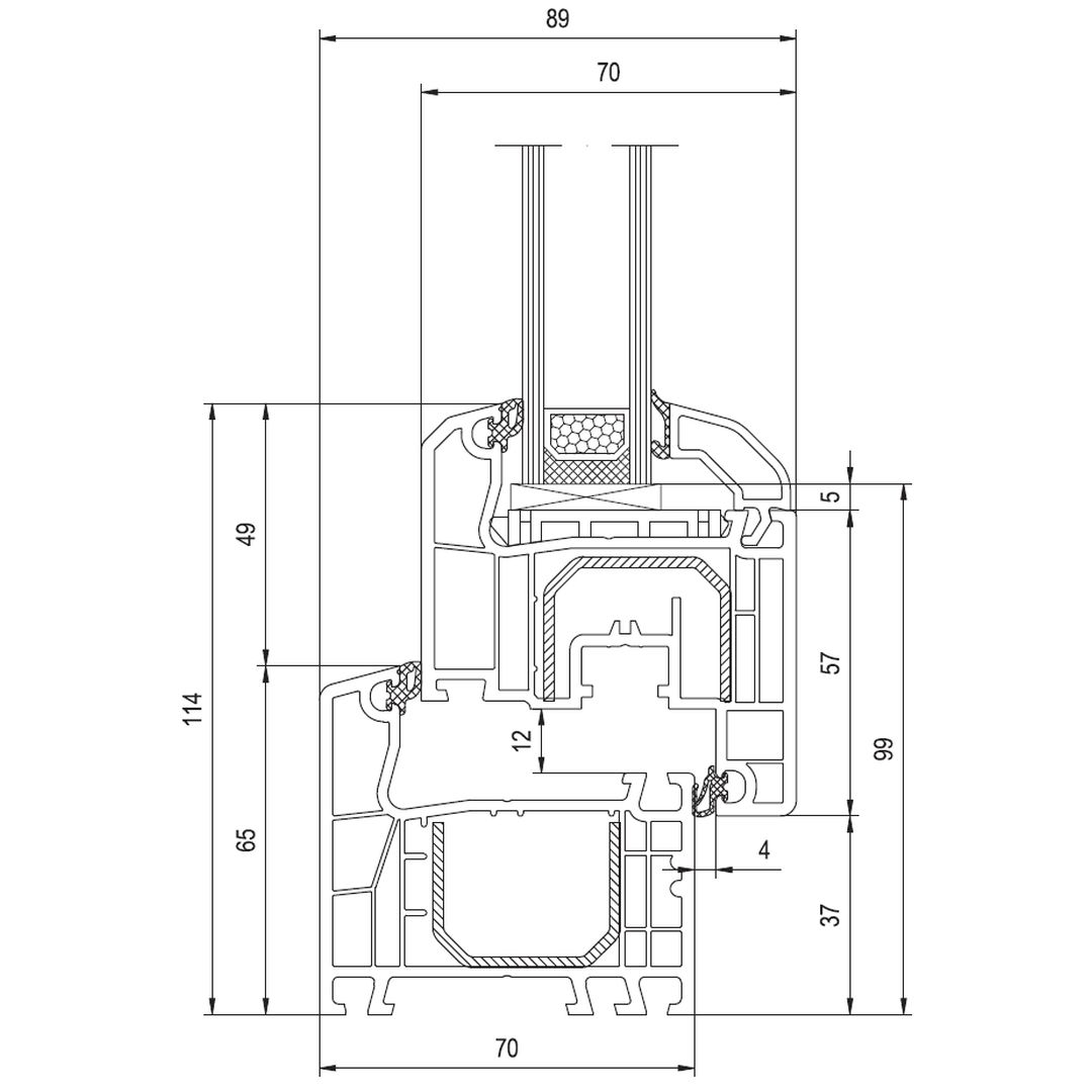
- 5-Kammersystem
- 70mm Bautiefe
- 2 Dichtebenen
- nach Maß
- günstiger Basispreis
Technische Daten
Referenzfenster Aluplast ideal 4000
1280x1480 EN ISO 10077, SwissPacer*
- Glas 1,1: 1,33*, 1,24W/m²K
- Glas 1,0: 1,26*, 1,18W/m²K
- Glas 0,7: 1,05*, 0,97W/m²K
- Glas 0,6: 0,98*, 0,90W/m²K
- Beschlag 3-dimensional einstellbar
- Fehlbediensperre
- ift-zertifiziert 191 800 48

Optionen, Farben, Glassorten
Modifizieren Sie das Fenster ideal 4000 nach Ihren Wünschen
- viele Farbvarianten
- Struktur-, Ornament-, Satinatoglas
- 3-Fachverglasung 0,7 und 0,6
- thermischer Randverbund
- Druckausgleichsventil
- Schallschutz- und Sicherheitsglas
- Beschlag RC1 und RC2
Informationen
Fenster aus Kunststoff Aluplast Ideal 4000
Die Ideal-Serie von ALUPLAST ist ein bewährtes Fenstersystem für Renovierungen:
- solide Qualität
- günstiger Preis
- große Variantenvielfalt
- gute Wärmedämmwerte
- regelmäßige Modifizierungen
Das Ideal 4000 ist ein echtes UniversalFenster und eignet sich somit perfekt für Renovierungen und Fenstersanierungen.
Mit seinem 5-Kammersystem, einer Bautiefe von 70mm und 2 Dichtungsebenen mit Anschlagdichtung (AD) ist es das perfekte Kunststofffenster - Es schützt vor Witterungseinflüssen und erhöht die Behaglichkeit des Raumklimas.
Die Flügel sind flächenversetzt, es gibt keine Kanten, keine Schmutzfänger.
Die Optik der Glasleisten richtet sich u.a. nach der Art der Verglasung. Zur Auswahl stehen hier halbrunde Leisten (RL RoundLine) und eckige (CL ClassicLine).
Das Ideal 4000 ist sicher: so ist es mit einer einbruchhemmenden Pilzkopfverriegelung mit Andruckregelung ausgestattet. Weiterhin ist ein wichtiger Bestandteil des Markenbeschlages gleichzeitig der Flügelandruck an die Falzluft. Neben dem Einbruchschutz wird hierdurch auch die Dichtheit sowie die leichte Handhabung der Fensterflügel sichergestellt.
Falls eine andere Sicherheitsklasse (RC1 oder RC2) gefordert wird, kann die Anzahl der einbruchhemmenden Sicherheitspilzzapfen erhöht werden. Weiterhin gibt es die Option eines abschließbarer Fenstergriffs.
Sie können das Ideal 4000 nach Wunsch konfigurieren.
Ideal 4000 Fensterfarben
Standardfarbe: weiß
Sie können aus über 100 Folierungen wählen:
- Farben
- Dekore
- Holzoptiken
- Sandstrukuren
Die Folierungen verfügen über beste Qualitätsmerkmale:
- UV-beständig
- witterungsbeständig
- Deutsche Markenware
(Renolit)
Die Holzoptiken wirken täuschend echt und haben den Vorteil, dass man nie wieder die Fenster streichen muss.
Ideal 4000 Verglasungen
Neben der standardmäßigen 2-Fachverglasung, können fast alle Glasvarianten gewählt werden.
- 3-Fachglas
- Ornamentglas
- Schallschutzglas
- Satinatoglas
- Sicherheitsglas
- Höhenglas
- Fenstersprossen
Zertifikate
Das Fenstersystem Aluplast Ideal 4000 verfügt über alle aktuell erforderlichen Zertifikate und Prüfzeugnisse, die heute für Baumaßnahmen üblich sind. Diese können dem Bauamt oder Projektleiter auf Anfrage gern übermittelt werden.






























