Fenster aus Kunststoff: Ideal 5000 von Aluplast.
Im Wunschmaß und ab Fensterwerk in Polen preiswert kaufen.
- Das Fenstersystem Aluplast Ideal 5000 mit Mitteldichtung ist ein solides Fenster zum günstigen Preis und hat sich gerade bei Sanierungen in der Schweiz bewährt.
- Kaufen Sie das Ideal 5000 nach Maß preiswert ab Fabrik in Polen.
Aluplast Ideal 5000
Das perfekte Renovierungsfenster
- Wärmeschutzverglasung
- 5-Kammersystem
- Stahlverstärkung, verzinkt
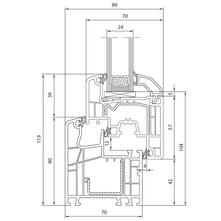
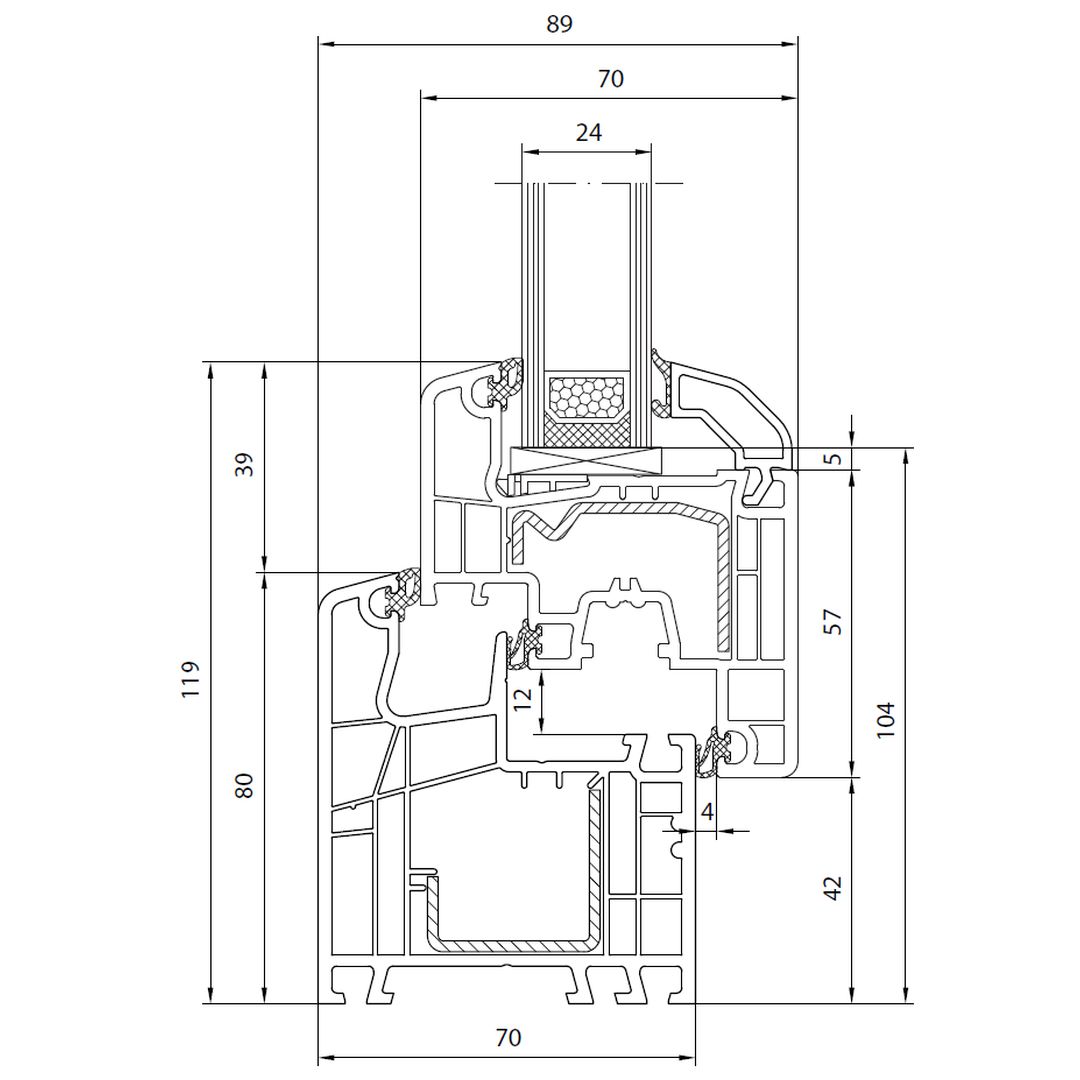
- 70mm Bautiefe
- 3 Dichtebenen
- nach Maß
- günstiger Basispreis ab Werk
Technische Daten
Referenzfenster Aluplast ideal 5000
1280x1480 EN ISO 10077, SwissPacer*
- Glas 1,1: 1,21*, 1,29W/m²K
- Glas 1,0: 1,14*, 1,23W/m²K
- Glas 0,7: 0,94*, 0,96W/m²K
- Glas 0,6: 0,87*, 0,89W/m²K
- Beschlag 3-dimensional einstellbar
- Fehlbediensperre
- ift-zertifiziert 191 800 48

Optionen, Farben, Glassorten
Modifizieren Sie das Fenster ideal 5000
- viele Farbvarianten
- Struktur-, Ornament-, Satinatoglas
- 3-Fachverglasung 0,7 und 0,6
- thermischer Randverbund
- Druckausgleichsventil
- Schallschutz- und Sicherheitsglas
- Beschlag RC1 und RC2
Informationen
Fenster aus Kunststoff Aluplast Ideal 5000
Das Ideal 5000 von ALUPLAST ist ein bewährtes Fenstersystem für Fenstersanierungen.
Im Vergleich zum Ideal 4000 verfügt es über eine zusätzliche Mitteldichtung sowie einen höheren Rahmen.
- Rahmenhöhe 80mm und 100mm
- gute Qualität
- günstiger Preis
- viele Farben
- 3-Fachverglasung
- stabil durch verzinkte
Stahlverstärkungen
Das Ideal 5000 ist ein echtes Komfortfenster. Es kostet zwar nur etwa 15% mehr als das 4000er-Profil, verfügt aber über ein Mitteldichtungssystem und, wodurch mit 3-Fachglas ein U-Wert von bis zu 0,87W/m² erreicht werden kann.
Dieses Fenster ist ein echter Topseller und wird zu 80% von unseren Kunden gekauft.
Der Rahmen ist auch gerade für viele Bauvorhaben in der Schweiz besonders geeignet, da er über eine größere Anschlagsbreite verfügt, was teure Verbreiterungen des Rahmens (Aufdopplungen) meistens überflüssig macht.
Das 5-Kammersystem hat eine Bautiefe von 70mm, 2 Dichtungsebenen mit Anschlagdichtung (AD) und eine zusätzliche Mitteldichtung (MD). Es schützt vor Witterungseinflüssen und erhöht die Behaglichkeit des Raumklimas.
Das Fenster ist durch flächenversetzte Flügel pflegeleicht, da es keine Kanten gibt.
Das Aluplast Ideal 5000 ist mit einer einbruchhemmenden Pilzkopfverriegelung mit Andruckregelung ausgestattet. Der Flügelandruck an die Falzluft ist ein wesentliches Merkmal des verwendeten Markenbeschlags von Roto oder Winkhaus. Der Einbruchschutz und die Dichtigkeit sind sichergesetllt.
Als Option kann die Sicherheitsklasse (RC1 oder RC2) erhöht werden. Auch die Verwendung von Verbundsicherheitsglas ist machbar. Sicherheitsglas ist in der Schweiz bei Balkontüren, Terrassentüren und speziellen Fenstern vorgeschrieben.
Sie können das Ideal 5000 nach Wunsch konfigurieren.
Ideal 5000 Fensterfarben
Standardfarbe: weiß
Sie können aus über 100 Folierungen wählen:
- Farben
- Dekore
- Holzoptiken
- Sandstrukuren
Die Folierungen verfügen über beste Qualitätsmerkmale:
- UV-beständig
- witterungsbeständig
- Deutsche Markenware
(Renolit)
Die Holzoptiken wirken täuschend echt und haben den Vorteil, dass man nie wieder die Fenster streichen muss.
Ideal 5000 Verglasungen
Neben der standardmäßigen 2-Fachverglasung, können fast alle Glasvarianten gewählt werden.
- 3-Fachglas
- Ornamentglas
- Schallschutzglas
- Satinatoglas
- Sicherheitsglas
- Höhenglas
- Fenstersprossen
Zertifikate
Das Fenstersystem Aluplast Ideal 5000 verfügt über alle aktuell erforderlichen Zertifikate und Prüfzeugnisse, die heute für Baumaßnahmen üblich sind. Diese können dem Bauamt oder Projektleiter auf Anfrage gern übermittelt werden.






























