Renovierungsprofil Ideal 4000 (Reno-Profil) von Aluplast.
Zur Montage im alten Fensterrahmen
Das Renovierungsprofil von Aluplast ist speziell für die Bauvorhaben und Renovierungen gedacht, wo eine komplette Demontage des alten Fensters nur schwer möglich ist, bzw. aufwendige und teure Folgearbeiten nach sich ziehen würde.
- zur Montage in
vorhandenen Fensterrahmen - 5-Kammersystem
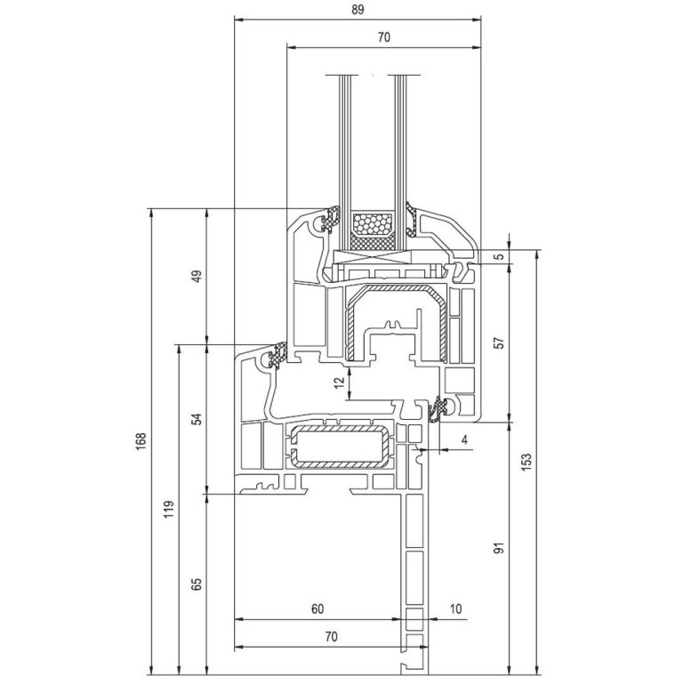
- 70mm Bautiefe
- 2 Dichtungen
- Sicherheitsbeschlag
Aluplast Renoprofil 4000
zur Montage in den vorhandenen Rahmen des alten Fensters
- 2-Fachglas im Standard
- 5-Kammersystem
- 70mm Bautiefe
- 2 Dichtebenen
- nach Maß
- günstiger Basispreis
Technische Daten
Referenzfenster Aluplast ideal 4000
1280x1480 EN ISO 10077, SwissPacer*
- Glas 1,1: 1,33*, 1,24W/m²K
- Glas 1,0: 1,26*, 1,18W/m²K
- Glas 0,7: 1,05*, 0,97W/m²K
- Glas 0,6: 0,98*, 0,90W/m²K
- Beschlag 3-dimensional einstellbar
- Fehlbediensperre
- ift-zertifiziert 191 800 48
Aluplast Renoprofil Fensterfarben
Standardfarbe: weiß
Sie können aus über 100 Folierungen wählen:
- Farben
- Dekore
- Holzoptiken
- Sandstrukuren
Die Folierungen verfügen über beste Qualitätsmerkmale:
- UV-beständig
- witterungsbeständig
- Deutsche Markenware
(Renolit)
Die Holzoptiken wirken täuschend echt und haben den Vorteil, dass man nie wieder die Fenster streichen muss.
Aluplast Renoprofil Verglasungen
Neben der standardmäßigen 2-Fachverglasung, können fast alle Glasvarianten gewählt werden.
- 3-Fachglas
- Ornamentglas
- Schallschutzglas
- Satinatoglas
- Sicherheitsglas
- Höhenglas
- Fenstersprossen
Zertifikate
Das Fenstersystem Aluplast Renoprofil 4000 verfügt über alle aktuell erforderlichen Zertifikate und Prüfzeugnisse, die heute für Baumaßnahmen üblich sind. Diese können dem Bauamt oder Projektleiter auf Anfrage gern übermittelt werden.































